Parter | Wejście z ulicy | Po remoncie |

lokalizacja: Toruń, Poznańska

5 000,00 PLN

46,30 PLN

Opis nieruchomości

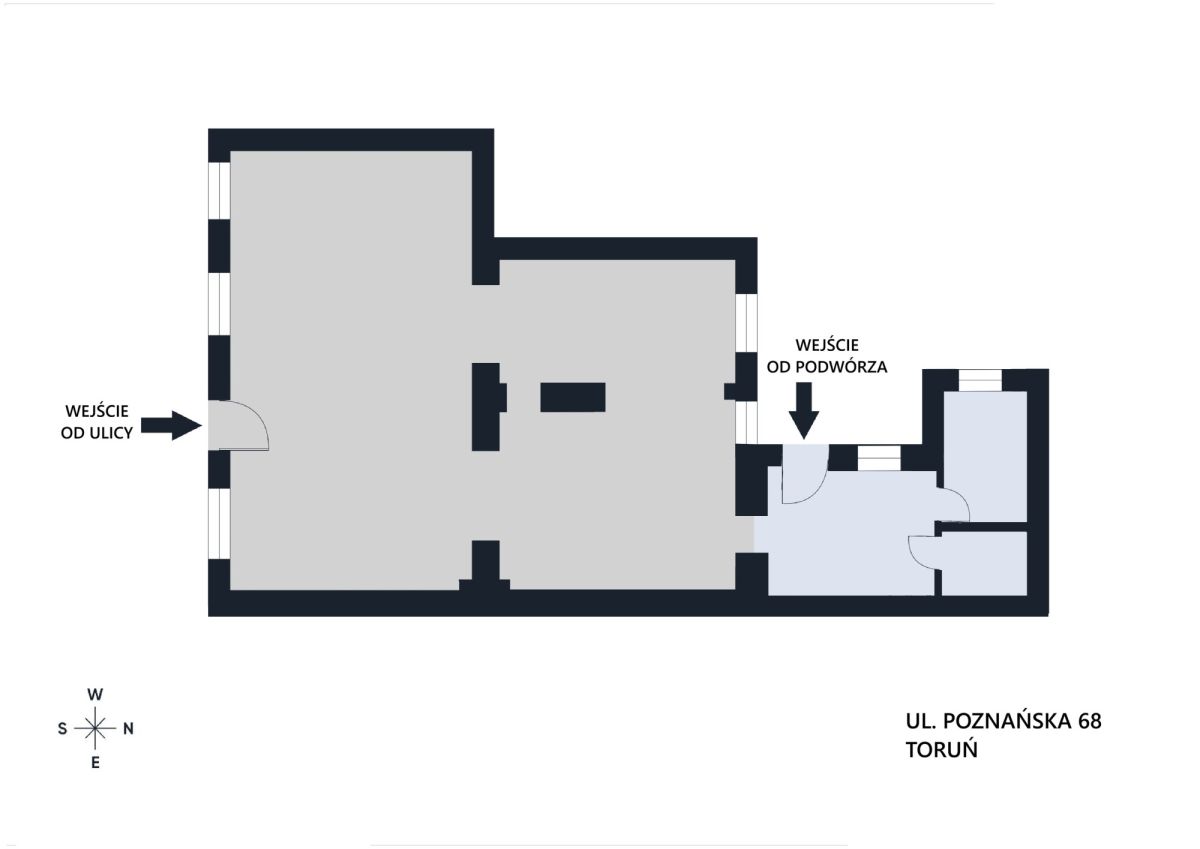
Do wynajęcia atrakcyjny lokal użytkowy o powierzchni ok 108 m², położony na parterze kamienicy przy ul. Poznańskiej 68.

Lokal wolny od zaraz, świeżo po generalnym remoncie, gotowy do rozpoczęcia działalności bez żadnych dodatkowych nakładów.


*** Najważniejsze atuty ***
- bezpośrednie wejście z ulicy - doskonała ekspozycja i widoczność
- drugie wejście od podwórza - wygoda dla pracowników i dostaw
- duża przestrzeń ok. 88 m² - idealna do dowolnej aranżacji
- funkcjonalna część socjalna: kuchnia, łazienka, korytarz, prysznic
- brak czynszu administracyjnego
- klimatyzacja
- duży parking bezpośrednio przed budynkiem
ogrzewanie z pieca gazowego dwufunkcyjnego
- kamienica w bardzo dobrej, centralnej lokalizacji

*** Opłaty miesięczne ***
- czynsz najmu: 5 000 PLN
- brak czynszu administracyjnego
- media wg zużycia: gaz, woda, prąd
- najemca nie ponosi kosztów biura nieruchomości

*** Przeznaczenie ***
Idealny pod gabinet, salon usługowy, sklep, biuro, studio, showroom lub inną działalność wymagającą dobrej lokalizacji i komfortowych warunków.

Gotowy lokal, świetna lokalizacja, zero prowizji - wejdź i działaj od pierwszego dnia.
Zapraszam do kontaktu i na prezentację.

Wirtualny spacer po nieruchomości
Plan Nieruchomości

Kontakt do opiekuna:

LCM Nieruchomości

Patrycja Krużewska
Nieprawidłowy adres E-mail
Mapa

Strona korzysta z plików cookie w celu realizacji usług zgodnie z Polityką prywatności. Możesz określić warunki przechowywania lub dostępu do cookie w Twojej przeglądarce.