Dochodowa kamienica z potencjałem

lokalizacja: Świecie, Klasztorna

495 000,00 PLN

1 162,11 PLN

Opis nieruchomości

Z przyjemnością prezentuje Państwu na sprzedaż budynek mieszkalny wielorodzinny w samym centrum Świecia woj. Kujawsko-Pomorskie. Zaledwie 50 m dzieli nas od rynku.

Budynek posiada ogromny potencjał z wysoką stopą zwrotu inwestycji!!!
Aktualnie dwa lokale użytkowe są wynajmowane co generuje dodatkowy przychód.

!Kupujący nie płaci wynagrodzenia do biura!

OPIS 
Kamienica składa się z dwóch lokali użytkowych z niezależnymi wejściami od ul. Klasztornej. Wysokie okna pozwolą nowemu najemcy na duże możliwości reklamowe aby przyciągnąć uwagę przechodniów. Gotowe „od zaraz” do prowadzenia działalności gospodarczej. Idealne nadadzą się na sklepy, biura, zakłady kosmetyczne lub inne usługi.

2 duże mieszkania z osobnymi wejściami od klatki schodowej oraz dodatkowo dwa niezależne wejścia od strony podwórka co umożliwia nowemu właścicielowi przerobienia dwóch mieszkań na cztery osobne mniejsze do dalszego wynajmu lub sprzedaży.

Powierzchnia całkowita budynku ok.425.95 m2, użytkowa ok.316.66 m2

Budynek piętrowy z poddaszem nieużytkowym.
Budynek zbudowany metodą tradycyjną murowaną.
Budynek podpiwniczony
Przewody wentylacyjne murowane.
Ściany wewnętrzne i sufity pokryte tynkiem gładkim.
Posadzki - płytki gresowe, panele podłogowe, płyty
Stolarka - okna pvc oraz drewniane , drzwi drewniane

INSTALACJE :
- Elektryczna
- Wodociągowo kanalizacyjna
- Gazowa

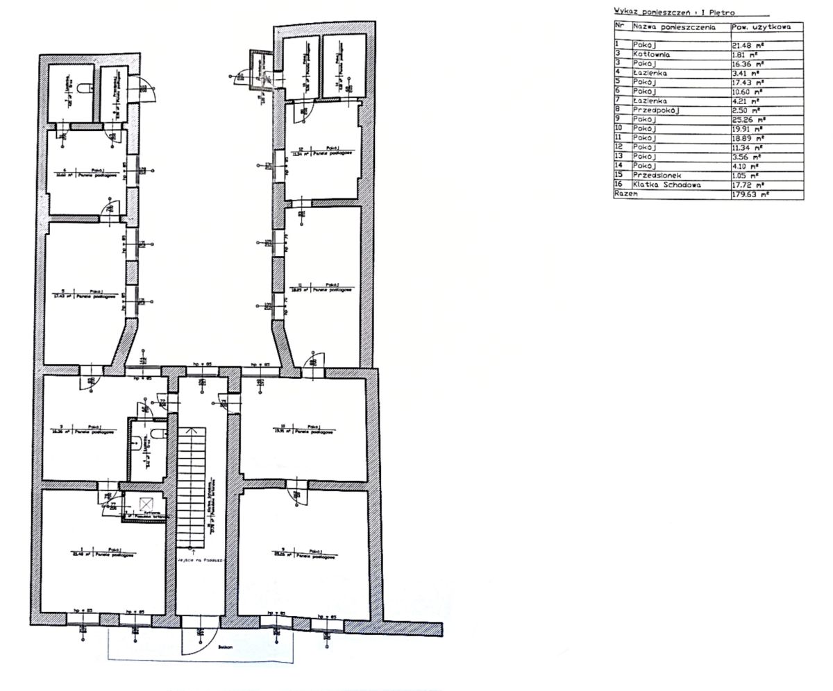
Mieszkanie 1 (LEWE) 77.80 m2
Pokój 21.48 m2
Kotłownia 1.81 m2
Pokój 16.36 m2
Łazienka 3.41 m2
Pokój 17.43 m2
Pokój 10.60 m2
Łazienka 4.21 m2
Przedpokój 2.50 m2

Mieszkanie 2 (PRAWE) 84.11 m2
Pokój 25.26 m2
Pokój 19.91 m2
Pokój 18.89 m2
Pokój 11.34 m2
Pokój 3.56 m2
Pokój 4.10 m2
Przedsionek 1.05 m2

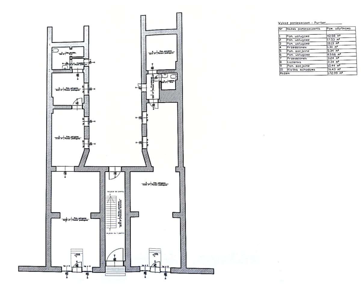
Lokal 1 ( LEWY) 76.88 m2
Pomieszczenie usługowe 42.58 m2
Pomieszczenie usługowe 17.53 m2
Pomieszczenie usługowe 10.13 m2
Przedsionek 1.30 m2
Pomieszczenie socjalne 5.34 m2

Lokal 2 (PRAWY) 79.68 m2
Pomieszczenie usługowe 63.66 m2
Przedsionek 3.24 m2
Łazienka 2.34 m2
Pomieszczenie socjalne 10.44 m2

Stan kamienicy wymaga remontu co daje przyszłemu właścicielowi możliwość aranżacji według własnych potrzeb i gustu.

Atuty:
- Atrakcyjna lokalizacja w centrum miasta
- Duże możliwości adaptacyjne
- Potencjał na wysoką stopę zwrotu z inwestycji
-Pełna infrastruktura na wyciągniecie ręki

Zapraszam na prezentację.

Kontakt do opiekuna:

LCM Nieruchomości

Dawid Hoffmann
Nieprawidłowy adres E-mail
Mapa

Strona korzysta z plików cookie w celu realizacji usług zgodnie z Polityką prywatności. Możesz określić warunki przechowywania lub dostępu do cookie w Twojej przeglądarce.